Frankfurt am Main:
°°° EINZIGARTIGER XXL-WOHNTRAUM °°° Exklusive 5-Zi. Whg. mit EBK & TERRASSE im Grünen
Objekt-Nr.: 6420-0#c4FR4

Grünanlage

Wohnbereich

Wohn-/Essbereich

Wohnbereich

Wohnbereich

Essbereich

Essbereich

Terrasse

Terrasse

Terrasse

Küche

Küche

Schlafzimmer

Schlafzimmer

Schlafzimmer

Badezimmer 1

Badezimmer 1

Badezimmer 1

Zimmer

Gäste-WC

Diele

Untergeschoss

Zimmer

Gartenansicht

Hauszugang

Grünanlage

Grundriss-Whg.-Nr.-1



























mtl. Kaltmiete:
3.250 €
Wohnfläche ca.:
200 m²
Zimmeranzahl:
5
+++ Bitte Telefonnummer angeben +++
________________________________________________________________
Eine idyllische und grüne „Stadtoase“ mitten in Frankfurt…
In diesem repräsentativen und äußerst großzügigen Villenanwesen verschmilzt der belebende Kontrast zwischen schweren und leichten Elementen und schafft ein einzigartiges Wohnambiente, das dem heutigen Zeitgeist für modernes und weiträumiges Wohnen entspricht.
Hier begegnet Ihnen eine gelungene Kombination aus gediegener Sachlichkeit und stilvoller Eleganz, die auch bei gehobenen Ansprüchen keine Wünsche offen lässt.…
Diese Wohnung zeichnet sich durch eine großzügige Raumplanung aus, welche insbesondere für anspruchsvolle Familien jede Menge Freiraum bietet, um sich individuell zu entfalten.
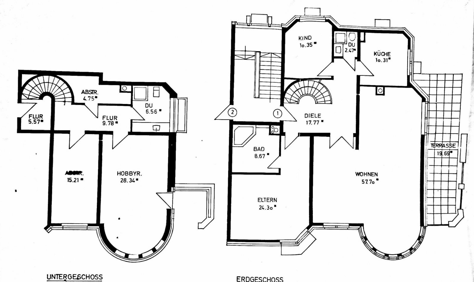
Ihre neue Maisonette-Wohnung verteilt sich mit rund 200 m² Wohn-/Nutzfläche auf zwei verschiedene Ebenen, die über eine elegante Treppe miteinander verbunden sind. So entstehen ungewöhnliche Raumkonzepte, die sich optimal an Ihre jeweiligen Bedürfnisse anpassen lassen. Kommunikation und Rückzug, Gastlichkeit und Zweisamkeit, Agilität und Entspannung: In diesem Zuhause sind das keine Gegensätze, sondern harmonisch verbundene Kontrapunkte eines genial geplanten Wohnkonzeptes unserer Zeit.
In der oberen Ebene (im Hochparterre) gelangen Sie von der Diele aus in alle weiteren Räume. Neben einem herrlichen und repräsentativen Wohn-/Essbereich, finden Sie auch eine mit allen nötigen Einbauten und Elektrogeräten ausgestattete Küche wieder.
Vom Wohnbereich aus, haben Sie den Zugang zur herrlichen Terrasse, die den Wohnraum ins Freie erweitert und ein gemütliches Ambiente schafft. Hier können Sie entspannen und den Blick ins Grüne genießen.
Auf dieser Etage bieten Ihnen zwei Schlafräume die nötige Ruhe und Erholung nach einem anstrengenden Tag.
Das innenliegende Badezimmer ist sowohl mit einer Badewanne als auch mit einer separaten Dusche ausgestattet. Ein Gäste-WC, welches Sie vom Flur aus erreichen, komplettiert den Komfort.
(Der Bereich im Hochparterre umfasst ca. 131 m² Wohnfläche + ca. 19 m² Terrasse.)
Über eine Treppe gelangen Sie in das Untergeschoss, wo Ihnen zwei weitere (Hobby-)Räume zur individuellen Nutzung zur Verfügung stehen.
Hier befindet sich auch das zweite Badezimmer, welches mit einer komfortablen Dusche ausgestattet ist.
Eine Abstellkammer bietet zusätzlichen Stauraum.
(Der Bereich im Untergeschoss bietet zusätzlich ca. 65 m² Nutzfläche.)
Den repräsentativen Charakter dieses Anwesend unterstreicht vor allem die absolut idyllische Gartenanlage, die von allen Bewohners des Hauses gemeinschaftlichen genutzt werden kann.
Optional kann auch ein PKW-Aussenstellplatz für zusätzlich 100,-€ angemietet werden.
Eine außergewöhnliche Wohnresidenz für Individualisten, die urbanes Leben schätzen und dennoch auf ein absolut ruhiges Ambiente nicht verzichten möchten.
*** Bei Bedarf kann die Wohnung auch möbliert angemietet werden. ***
Wohnungstyp: Maisonette
Nebenkosten: 400 €
Kaution / Genossenschaftsanteile: 3 Monatskaltmieten
Heizkosten: sind in den Nebenkosten enthalten
Provisionspflichtig: nein
Küche: Einbauküche
Bad: Dusche, Wanne, Fenster
Anzahl Badezimmer: 2
Terrasse: 1
Gäste-WC: ja
Garten/-mitbenutzung: ja
Anzahl der Parkflächen: 1
Anzahl der Parkflächen: 1 x Außenstellplatz, pro Stück 100 €
Baujahr: 1985
Bezugsfrei ab: 01.10.2025
Bodenbelag: Fliesen, Stein, Teppichboden, Parkett
Zustand: gepflegt
Heizung: Zentralheizung
Befeuerungsart: Gas
Energieausweistyp: Verbrauchsausweis - gültig vom 02.10.2017 bis 02.10.2027
Energieeffizienz-Klasse: E
Baujahr laut Energieausweis: 1985
Wir weisen auf unsere Allgemeinen Geschäftsbedingungen hin. Durch weitere Inanspruchnahme unserer Leistungen erklären Sie die Kenntnis und Ihr Einverständnis.
Das könnte Ihnen auch gefallen

(Living Point Frankfurt) - Helene Par und Alper Par GbR
Telefon: 069 - 430082 56 - 0
Fax: 069 - 430082 56 - 9
60431 Frankfurt am Main











































