Friedrichsdorf:
°°° CHARMANTE 2-Zi. Whg. mit EBK & XL-LOGGIA in Köppern °°°
Objekt-Nr.: 6623#c4FR4

Ausblick

Ausblick

Loggia

Loggia

Loggia

Wohnbereich

Küche

Diele

Diele

Schlafzimmer

Badezimmer

Aussenansicht

Aussenansicht

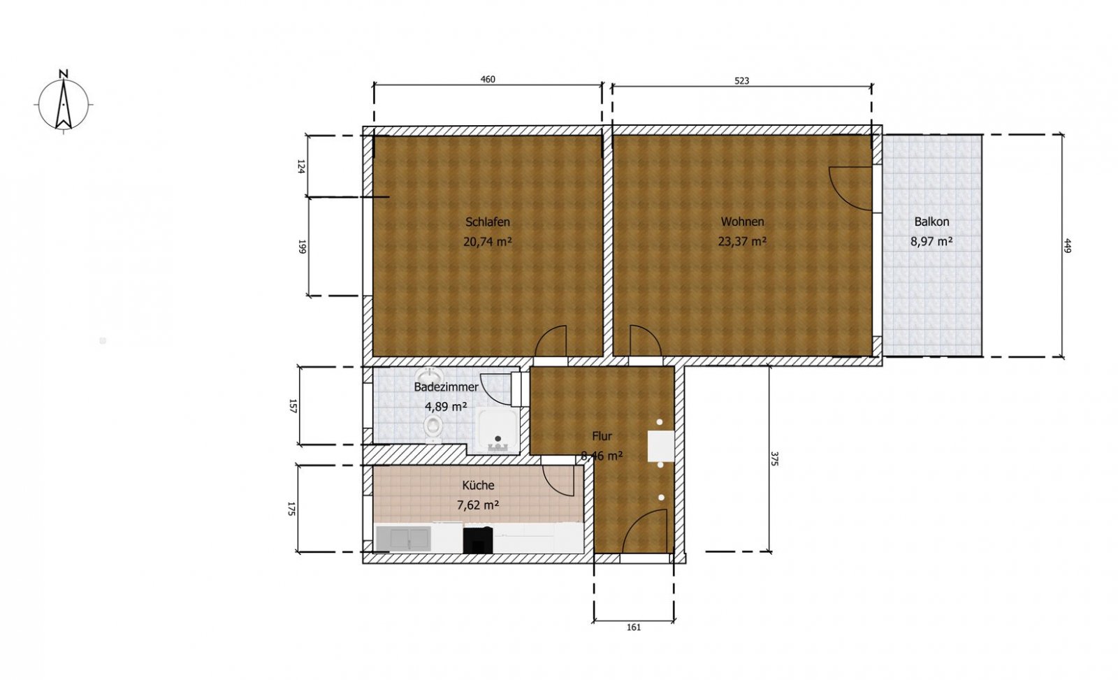
Grundriss














mtl. Kaltmiete:
720 €
Wohnfläche ca.:
65 m²
Zimmeranzahl:
2
+++ Bitte Telefonnummer angeben +++
Diese gemütliche Wohnung befindet sich im 3. OG eines sehr gepflegten Mehrfamilienhauses (11 Parteien) in ruhiger Wohnlage in Friedrichsdorf - Köppern.
Die 3. Etage erreichen Sie ganz bequem mit einem Aufzug.
Hier angelangt erwartet Sie ein schönes und modernes Wohnambiente, gepaart mit einem großzügigen Grundriss.
Auf ca. 65 m² Wohnfläche verteilen sich hier 2 gut geschnittene Räume, die Ihnen genügend Freiraum bieten um sich individuell einzurichten.
Vom hellen Wohnbereich aus haben Sie den Zugang zur wundervollen und großen Südwest-Loggia, die Ihren Lebensraum nach außen erweitert.…
Hier können Sie entspannt der Feierabend ausklingen lassen und den Ausblick über die Dächer genießen.
Von der Diele aus erreichen Sie alle weiteren Räume.
Die separate Küche ist bereits mit zeitlos modernen und hochwertigen Einbauten samt allen nötigen Elektrogeräten ausgestattet.
Des Weiteren stehen Ihnen ein gut geschnittenes Schlafzimmer zur Verfügung.
Das weiß geflieste Tageslichtbad ist mit einer Duschkabine ausgestattet. Hier haben Sie auch die Möglichkeit Ihre Waschmaschine anzuschließen.
Die Wohnräume sind mit schönem Parkettboden ausgestattet.
Küche und Badezimmer sind modern gefließt.
Außenrollos im Wohn- und Schlafbereich bieten Sicht- und Sonnenschutz.
Ein eigener Kellerraum ist ebenfalls vorhanden und bietet zusätzlichen Stauraum.
Eine Münzwaschmaschine und Trockner stehen allen Bewohnern des Hauses zur gemeinschaftlichen Nutzung zur Verfügung.
WICHTIGE INFO:
- Die Mindestvertragslaufzeit beträgt 1 Jahr
- Staffelmiete: 5% alle 3 Jahre
Wohnungstyp: Etagenwohnung
Etage: 3
Etagenanzahl: 4
Nebenkosten: 300 €
Kaution / Genossenschaftsanteile: 3 Monatskaltmieten
Heizkosten: sind in den Nebenkosten enthalten
Küche: Einbauküche
Bad: Dusche, Fenster
Anzahl Schlafzimmer: 1
Anzahl Badezimmer: 1
Balkon: 1
Keller: ja
Fahrstuhl: ja
Baujahr: 1971
Bezugsfrei ab: sofort
Bodenbelag: Fliesen, Parkett
Heizung: Zentralheizung
Befeuerungsart: Öl
Energieausweistyp: Verbrauchsausweis - gültig vom 09.08.2017 bis 09.08.2027
Energieeffizienz-Klasse: C
Baujahr laut Energieausweis: 1971
Wir weisen auf unsere Allgemeinen Geschäftsbedingungen hin. Durch weitere Inanspruchnahme unserer Leistungen erklären Sie die Kenntnis und Ihr Einverständnis.
Das könnte Ihnen auch gefallen

(Living Point Frankfurt) - Helene Par und Alper Par GbR
Telefon: 069 - 430082 56 - 0
Fax: 069 - 430082 56 - 9
61381 Friedrichsdorf















































