Frankfurt:
*** SEHR GEPFLEGTES MEHRFAMILIEHAUS *** 333 m² Wfl., Terrassen, Balkone, gute Ausstattung...
Objekt-Nr.: 5207#c4FR4

kl. Garten

EG

EG

EG

EG

EG

EG

EG

EG

EG










Preis:
1.850.000 €
Baujahr:
1990
Diese 2-geschössige Liegenschaft mit ausgebautem Satteldach wurde im Jahre 1990 erbaut und befindet sich in einer ruhigen und sehr gepflegten Lage in Offenbach am Main.
Hier verteilen sich ca. 333 m² Gesamt-Wohnfläche zzgl. 75 m² Nutzfläche.
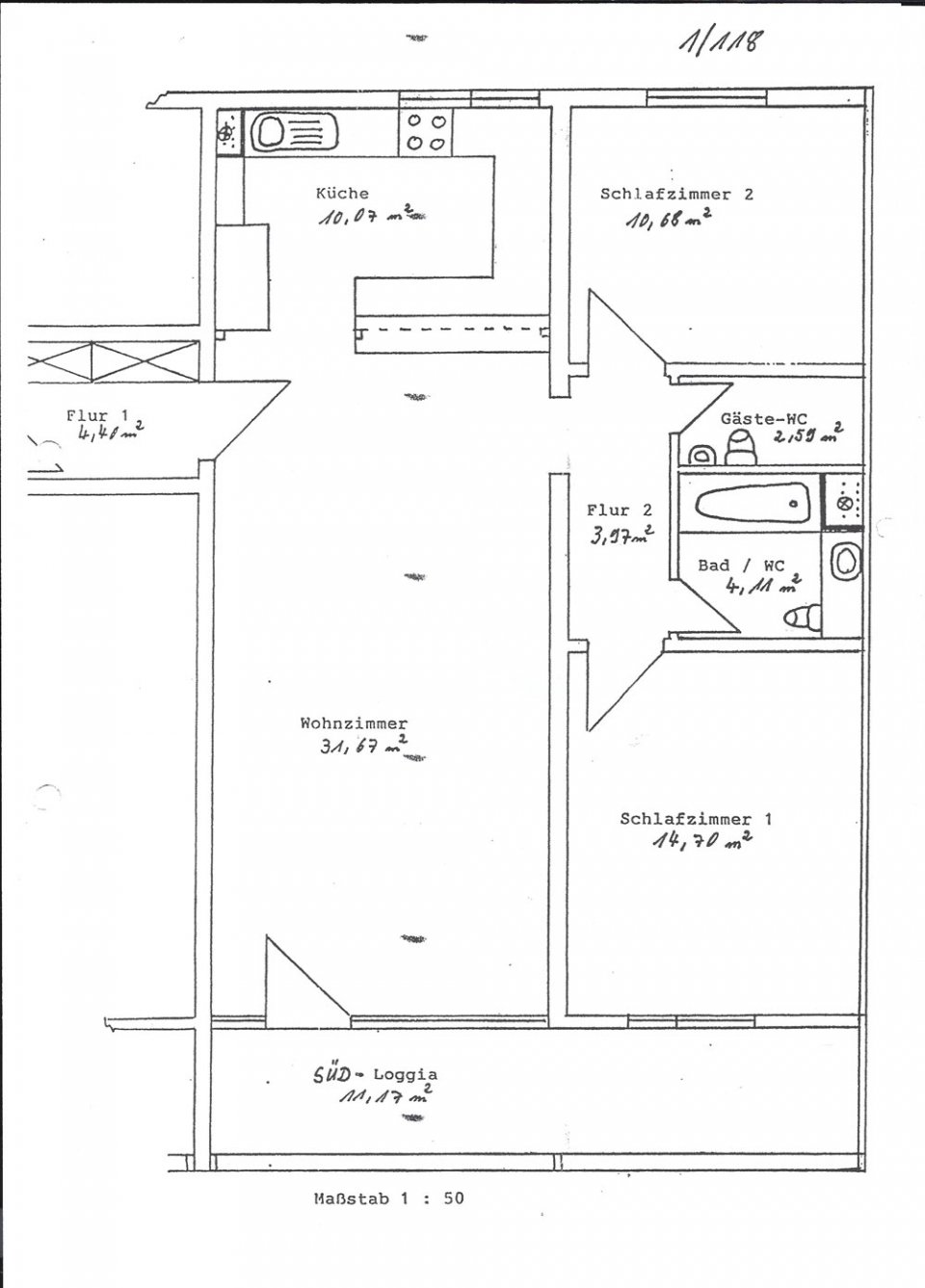
Im Erdgeschoss wurden 2 Wohnungen zusammengelegt zu einer 5-Zimmer Wohn- oder Gewerbeeinheit mit einer Fläche von ca. 125 m². Eine Umwandlung in die ursprüngliche 3-Zimmer und 2-Zimmer Wohnung wäre selbstverständlich auch möglich. Zu dieser Einheit gehören auch 2 Terrassen.
Das 1. Obergeschoss ist vom Grundriss identisch zum Erdgeschoss. Hier finden Sie eine 2-Zimmer und eine 3-Zimmer Wohnung mit jeweils einem dazugehörigen Balkon.
Im ausgebauten Dachgeschoss befindet sich 2 weitere, kleine Wohneinheiten mit insgesamt ca. 59m² Wohnfläche.
Die Bäder sind weiß gefliest und die Böden teilweise mit Marmor- und Holzböden ausgestattet.
Das gesamte Haus ist unterkellert und verfügt über Mieterkeller, Lager- und Abstellräume, einen Heizraum und einen Abstellraum/Archivraum (ca. 75 m²).
Zu den Räumlichkeiten gehören auch 2 PKW-Stellplätze und eine Garage.
Derzeit sind bis auf die Erdgeschosseinheit alle Räumlichkeiten vermietet.
(Die Wohnungen im Erdgeschoss und im Obergeschoss können auch als Gewerbeeinheiten vermietet werden. Die Genehmigung zur gewerblichen Nutzung liegt bereit vor.)
Grundstück ca.: 602 m²
Wohnfläche ca.: 333 m²
Etagenanzahl: 3
Anzahl der Parkflächen: 2
Anzahl der Parkflächen: 2 x Außenstellplatz, pro Stück 14.000 €
Heizung: Zentralheizung
Befeuerungsart: Gas
Energieausweistyp: Verbrauchsausweis - gültig vom 04.06.2015 bis 26.04.2028
Energieeffizienz-Klasse: D
Baujahr laut Energieausweis: 1990
Bei Abschluss des Kaufvertrages wird für den Erwerber eine Käuferprovision in Höhe von 3,57 % inkl. MwSt. vom beurkundeten Kaufpreis fällig. (Der Immobilienmakler hat einen provisionspflichtigen Maklervertrag mit dem Verkäufer in gleicher Höhe abgeschlossen.)
Wir weisen auf unsere Allgemeinen Geschäftsbedingungen hin. Durch weitere Inanspruchnahme unserer Leistungen erklären Sie die Kenntnis und Ihr Einverständnis.
Das könnte Ihnen auch gefallen

(Living Point Frankfurt) - Helene Par und Alper Par GbR
Telefon: 069 - 430082 56 - 0
Fax: 069 - 430082 56 - 9
63069 Frankfurt





























