Frankfurt:
°°° Exklusive Stadtoase °°° 4–5 Zi. Terrassenwohnung (Dichterviertel)
Objekt-Nr.: 5848#c4FR4

Gartenanlage

Terrasse

Terrasse

Terrasse

Wohn-/Essbereich (leer)

Wohn-/Essbereich (leer)

Wohn-/Essbereich (leer)

Flur

Diele

Küche

Küche

Schlafzimmer 1

Schlafzimmer 1

Badezimmer

Badezimmer

Badezimmer

(Schlaf-)zimmer 2

Terrasse

Terrasse

(Schlaf-)zimmer 3

Duschbad

Gartenanlage

Gartenansicht

Gartenanlage

Aussenansicht

Aussenansicht

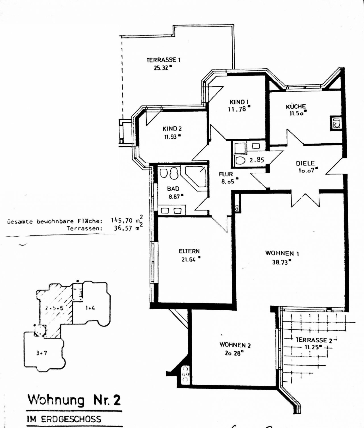
Grundriss



























mtl. Kaltmiete:
2.750 €
Wohnfläche ca.:
150 m²
Zimmeranzahl:
5
+++ Bitte Telefonnummer angeben +++
Exklusive Stadtoase im Grünen – Leben zwischen Ruhe und urbaner Nähe.
In diesem repräsentativen und äußerst großzügigen Villenanwesen verschmilzt zeitlose Eleganz mit moderner Leichtigkeit und schafft ein Wohnambiente, das dem heutigen Anspruch an exklusives, großzügiges Wohnen perfekt entspricht.
Dieses Anwesen vereint gediegene Sachlichkeit mit einem großzügigen Raumkonzept, das insbesondere Familien individuelles Wohnen mit viel Freiraum ermöglicht.
Ihre neue Terrassenwohnung verteilt sich mit ca. 150 m² Wohnfläche auf 4–5 großzügig geschnittene Räume.
Der offene und lichtdurchflutete Wohn-/Essbereich bildet das Herzstück der Wohnung. Ergänzend dazu steht Ihnen eine mit allen notwendigen Einbauten und Elektrogeräten ausgestattete Küche zur Verfügung.…
Die drei weiteren (Schlaf-)Räume lassen sich individuell gestalten – ob als private Rückzugsorte, Arbeitszimmer oder Kinderzimmer. Zwei Tageslichtbäder sorgen für hohen Komfort: eines mit Whirlpool-Badewanne, das zweite mit Dusche.
Ein besonderes Highlight sind die beiden Terrassen in Ost- und Südwest-Ausrichtung, die Ihren Wohnraum ins Freie erweitern. Hier genießen Sie ungestörte Sonnenstunden und den Blick ins Grüne – ein Ort zum Entspannen und Auftanken.
Den exklusiven Charakter dieses Anwesens unterstreicht die absolut idyllische, gemeinschaftliche Gartenanlage mit Spielplatz, zu der Sie von der Wohnung aus einen privaten Zugang haben.
Diese außergewöhnliche Wohnresidenz richtet sich an Individualisten, die urbanes Leben schätzen, gleichzeitig aber nicht auf Ruhe, Freiraum und eine grüne Umgebung verzichten möchten.
*** Bei Bedarf kann die Wohnung auch teilmöbliert angemietet werden. ***
WICHTIG:
- Die Mindestvertragslaufzeit beträgt 2 Jahre
Wohnungstyp: Terrassenwohnung
Nebenkosten: 500 €
Kaution / Genossenschaftsanteile: 3 Monatskaltmieten
Heizkosten: sind in den Nebenkosten enthalten
Küche: Einbauküche
Bad: Dusche, Wanne, Fenster
Anzahl Schlafzimmer: 3
Anzahl Badezimmer: 2
Balkon: 2
Terrasse: 1
Garten/-mitbenutzung: ja
Keller: ja
Anzahl der Parkflächen: 1 x Garage, pro Stück 150 €
Baujahr: 1985
Bezugsfrei ab: 01.04.2026
Bodenbelag: Fliesen, Stein, Laminat
Energieverb. Warmwasser enthalten: ja
Heizung: Zentralheizung
Befeuerungsart: Gas
Energieausweistyp: Verbrauchsausweis - gültig vom 02.10.2017 bis 02.10.2027
Energieeffizienz-Klasse: E
Wir weisen auf unsere Allgemeinen Geschäftsbedingungen hin. Durch weitere Inanspruchnahme unserer Leistungen erklären Sie die Kenntnis und Ihr Einverständnis.
Das könnte Ihnen auch gefallen

(Living Point Frankfurt) - Helene Par und Alper Par GbR
Telefon: 069 - 430082 56 - 0
Fax: 069 - 430082 56 - 9
60431 Frankfurt


































